Leave a Message

Thank you for your message. I will be in touch with you shortly.

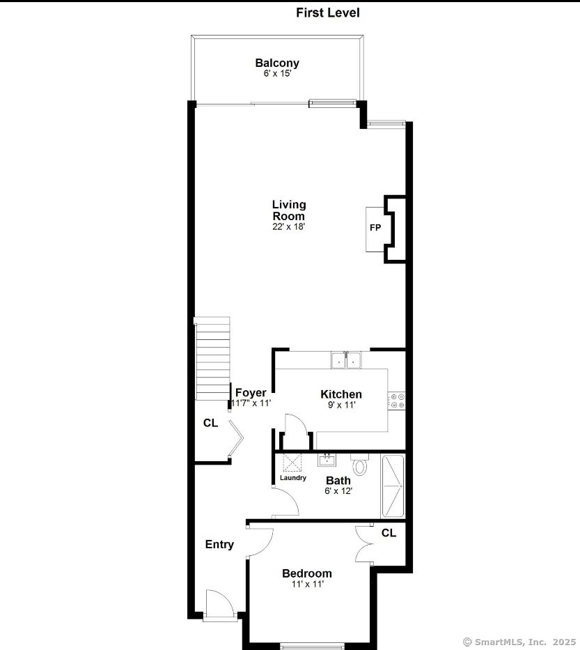
Property Description

Waterfront Elegance in Cos Cob Experience year-round resort living at Palmer Point in this beautifully renovated 2-bedroom, 2 full-bath waterfront condominium. The open-concept living and dining area features new flooring, a cozy fireplace, and a wall of glass opening to a private terrace overlooking the harbor. A sleek modern kitchen with quartz countertops and custom cabinetry continues the theme of style and sophistication. The first-floor den offers flexibility as a guest room or home office, while the upstairs primary suite impresses with its vaulted ceiling. Enjoy an exceptional waterfront lifestyle just moments from the Cos Cob train station, nearby beaches, and vibrant downtown Greenwich.

Overview

Property Status
Pending
MLS ID
24134554
Property Type
Condo
Year Built
1979

Features & Amenities

Total Area
1,104 Sq.Ft.
Architecture Styles
Townhouse
View Description
Water
Stories
2
Garage Spaces
1.0
Water Source
Public
Lot Features
Waterfront
Heat Type
Natural Gas, Forced Air
Air Conditioning
Central Air
Sewer
Public Sewer
Elementary School
Cos Cob
Middle School
Central
High School
Greenwich
Sales Price
$849,000
Real Estate Tax
$5,449/yr
HOA
$770/mo
Zoning
WB

Downloads

15 River Road STE 210

Schedule a Tour

I would love to help you see this beautiful home! As a full-service brokerage, I can help you tour. Please submit an offer, and answer questions about the buying process.

Enter a valid email

Thank you

for your interest in 15 River Road STE 210, Greenwich, CT 06897

back to page
15 River Road STE 210
Navigate

Mortgage Calculator

Estimate your monthly mortgage payment, including the principal and interest, property taxes, and HOA. Adjust the values to generate a more accurate rate.
$0,000 Your Payment 20 15 65
$0,000 Your Payment

I'm Interested In

15 River Road STE 210

or
  • CallKonstantine Wells

    License #RES.0827815

    (203) 609-3605
  • Featured Properties

    • 15 River Road, 210 Pending

      $849,000

      15 River Road, 210, Cos Cob, CT 06807

      • 2 Beds
      • 2 Baths
      • 1,104 Sq.Ft.
    • 15 River Road STE 210 Pending

      $849,000

      15 River Road STE 210, Greenwich, CT 06897

      • 2 Beds
      • 2 Baths
      • 1,104 Sq.Ft.
    View All

    Follow Us On Instagram