Leave a Message

Thank you for your message. I will be in touch with you shortly.

Property Description

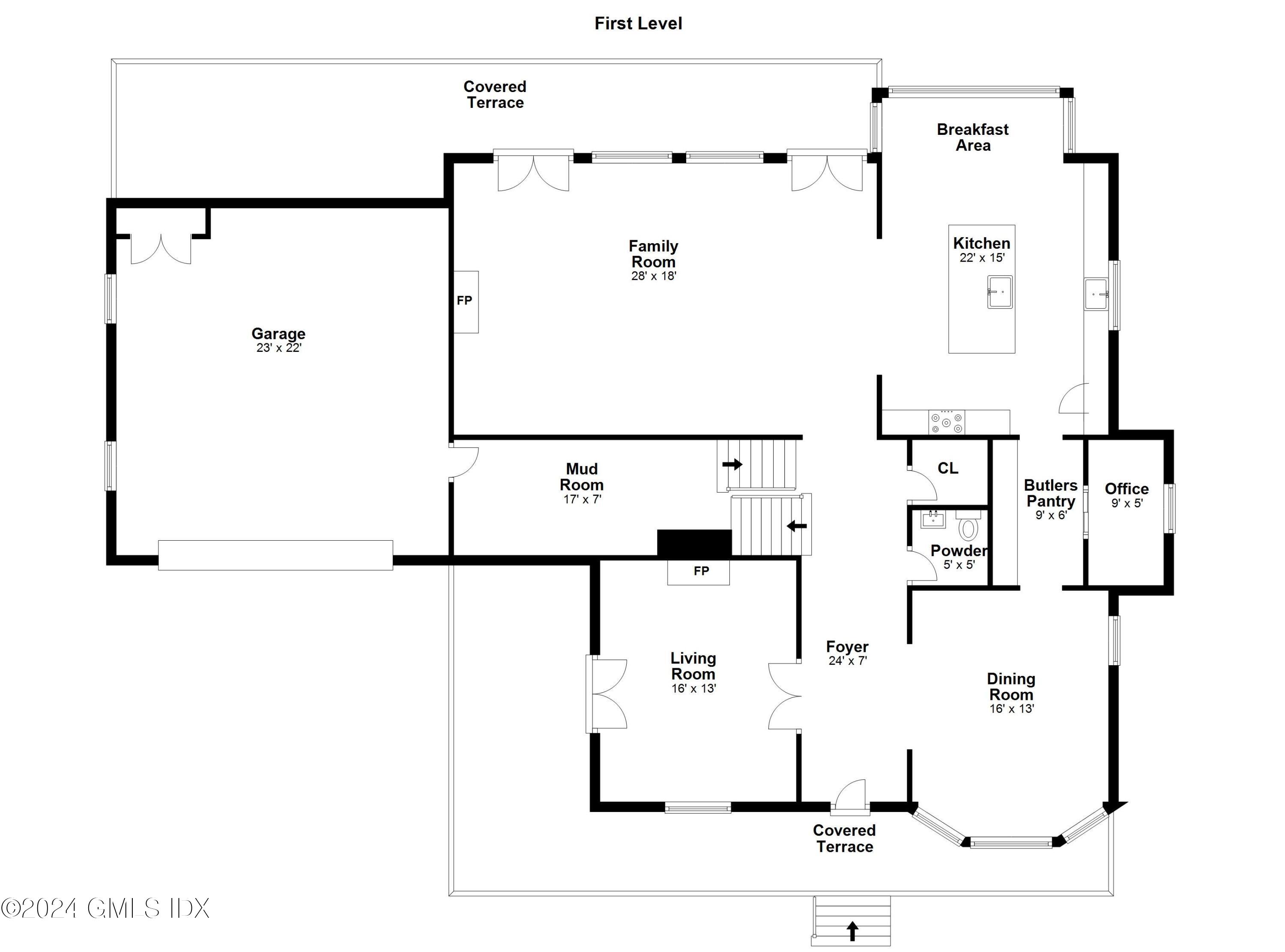
Welcome to the Old Greenwich shoreline on a desirable private lane cul-de-sac. This Shore Colonial five-bedroom, five-and-a-half-bath home boasts views of the Sound. Enjoy easy indoor/outdoor entertaining to the pool and patios from open chef's kitchen and family room. Main level also features stylish living room with fireplace and French doors to wraparound front porch, elegant dining room, butler's pantry, office nook and powder room. The second floor includes a large primary suite with fireplace, dual walk-in closets and spa bath plus three ensuite bedrooms. Sundrenched third floor offers a playroom, gym, full bath and bedroom/office. Lower level mudroom provides access to attached two-car garage. All of this with deeded beach access, convenience to schools, shopping and train.

Overview

Property Status
Sold
Lot Size
0.28 Acres
MLS ID
120661
Property Type
Residential
Year Built
2007

Features & Amenities

Total Area
4,986 Sq.Ft.
Architecture Styles
Shore Colonial
Water Frontage
Waterviews
Garage Spaces
2.0
Water Source
Public
Roof
Wood
Lot Features
Cul-de-Sac, Fenced
Parking
Garage Door Opener
Heat Type
Hydro-Air, Natural Gas
Air Conditioning
Central A/C
Other Interior Features
Eat-in Kitchen
Sewer
Public Sewer
Other Exterior Features
Gas Grill
Elementary School
Old Greenwich
Middle School
Eastern
Sales Price
$5,000,000
Real Estate Tax
$34,669/yr
Zoning
R-12

Downloads

11 Lighthouse Lane

Schedule a Tour

I would love to help you see this beautiful home! As a full-service brokerage, I can help you tour. Please submit an offer, and answer questions about the buying process.

Enter a valid email

Thank you

for your interest in 11 Lighthouse Lane, Old Greenwich, CT 06870

back to page
11 Lighthouse Lane
Navigate

I'm Interested In

11 Lighthouse Lane

or
  • CallKonstantine Wells

    License #RES.0827815

    (203) 609-3605
  • Featured Properties

    • 15 River Road, 210 Pending

      $849,000

      15 River Road, 210, Cos Cob, CT 06807

      • 2 Beds
      • 2 Baths
      • 1,104 Sq.Ft.
    • 15 River Road STE 210 Pending

      $849,000

      15 River Road STE 210, Greenwich, CT 06897

      • 2 Beds
      • 2 Baths
      • 1,104 Sq.Ft.
    View All

    Follow Us On Instagram